Ersatzneubau Schliiffi, Niederhasli
Ersatzneubau Schliiffi, Niederhasli
von Andi Plath
Projektbeschrieb
Das Quartier Schliiffi, am Rand der Gemeinde Niederhasli im Zürcher Unterland gelegen, präsentiert sich als Ensemble aus sechs Gebäuden, die durch ihren charakteristischen Baustil geprägt sind. Dieser orientiert sich an den traditionellen Bauernhäusern der Flachlandregion.
Ein Gebäude mit steinernem Sockel und darüber liegendem Holzbau wird nun abgerissen. Diese Struktur, einst eine Laube, diente früher zum Trocknen von Getreide und Kleidern sowie als Erschließungsbereich und erhöhter Aufenthaltsort im Freien. Wir nehmen die Architektur und ihre Funktion wieder auf, um dem früheren Bau an dieser Stelle Tribut zu zollen.
Die Platzierung des Neubaus berücksichtigt die Parzellierung und die Größenordnung des Quartiers. Das neue Gebäude erstreckt sich entlang der Längsfassade, wobei die zentrale Erschließung direkt ins Innere führt.
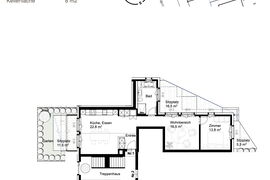
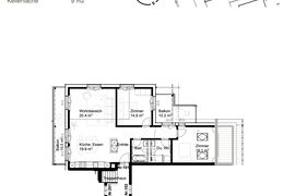
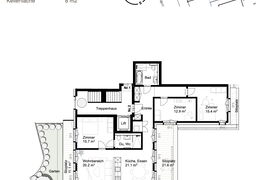
Insgesamt entstehen fünf Wohnungen. Die Einheiten im Erd- und Obergeschoss erstrecken sich jeweils quer über die Tiefe des Gebäudes. Ein Laubengang im Obergeschoss erstreckt sich entlang der gesamten Westseite, während die Dachwohnung die volle Länge des Gebäudes nutzt und somit alle vier Himmelsrichtungen bedient.
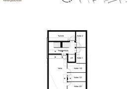
Das Mehrfamilienhaus ist mit einer Einzelgarage ausgestattet, die als E-Car-Sharing-Platz genutzt wird. Die Mieter erhalten Zugang zu einem Elektrofahrzeug zur gemeinsamen Nutzung, was den Bedarf an Zweitfahrzeugen reduziert und zu fairen Konditionen angeboten wird. Die Kommunikation für die Fahrzeugnutzung erfolgt über eine eigene App.
Die Materialwahl des Neubaus orientiert sich am früheren Gebäude. Im Erdgeschoss wird über dem steinernen filigranen Sockel das Mauerwerk verputzt, während die Fassade darüber hinterlüftet wird. Eine vertikale Gliederung verleiht dem Gebäude Rhythmus und Struktur. Durch die Verwendung früherer architektonischer Elemente fügt sich der Neubau würdevoll in das Quartier Schliiffi ein.
| Leistungen | Architektur, Planung, Bauleitung |
| Realisierung | 2021 bis 2024 |
| Bauherr | Private Familie |
| Auftraggeber | Private Familie |
Oesch Architektur GmbH
Alte Badenerstrasse 8
8173 Neerach
Tel. 043 411 10 00
So erreichen Sie uns
Montag bis Freitag:
07.30 Uhr – 11.45 Uhr, 13.15 Uhr – 17.00 Uhr
Folgen Sie uns auf Instagram
Oesch Architektur GmbH aus Neerach im Zürcher Unterland ist Ihr zuverlässiges Architekturbüro für Ihr Bauprojekt. In mehr als 34 Jahren haben wir uns einen Namen geschaffen für Neubauten, Umbauten und Renovationen in einwandfreier Qualität.
Unser Versprechen: Oesch Architektur GmbH hält mit qualifizierter Architektur die Kosten und Termine ein.
© 2026 Oesch Architektur Datenschutz | Impressum