Neubau Gewerbe
Neubau Gewerbe
von Oesch Architektur GmbH
Kurzbeschrieb
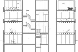
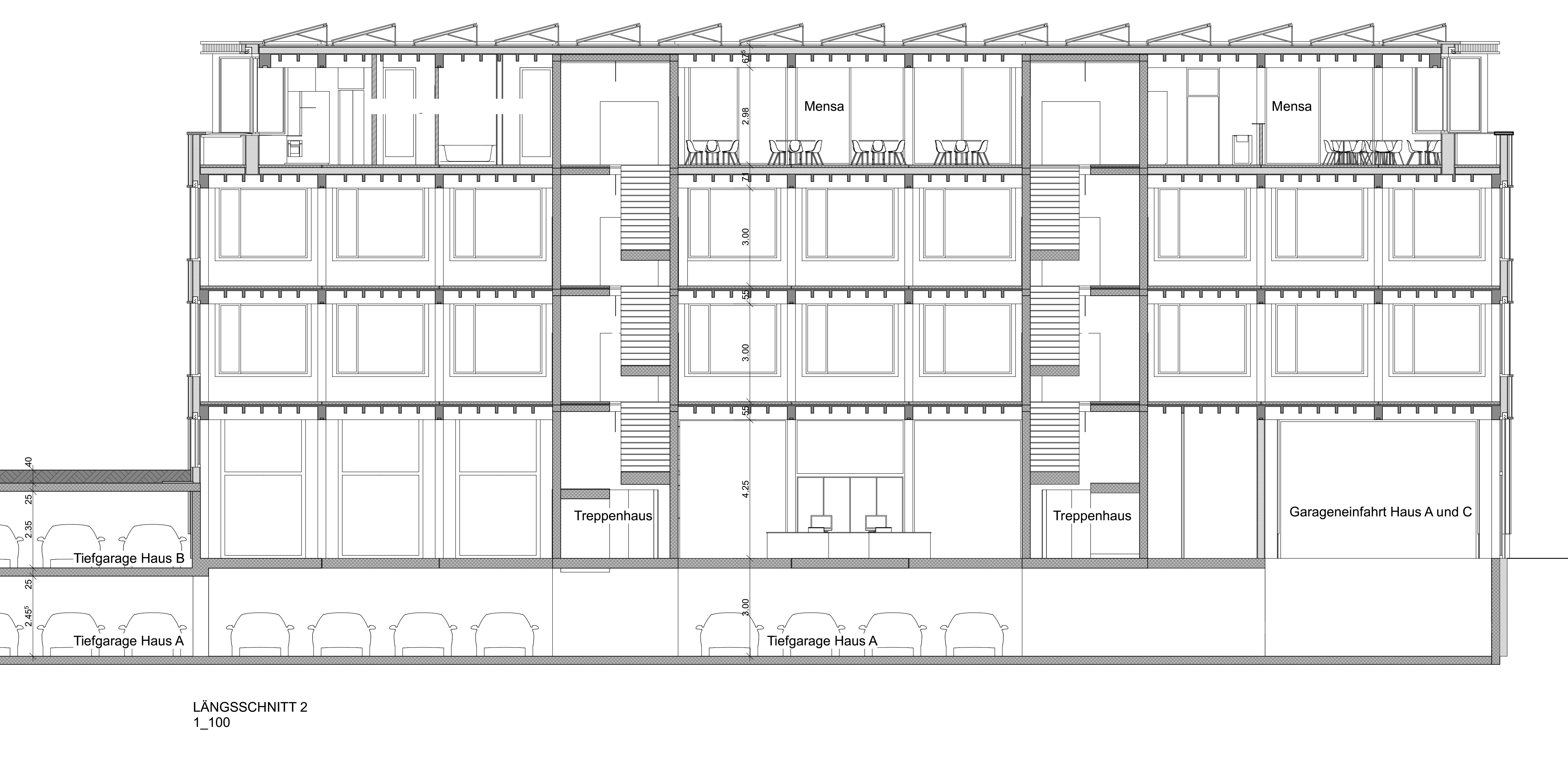
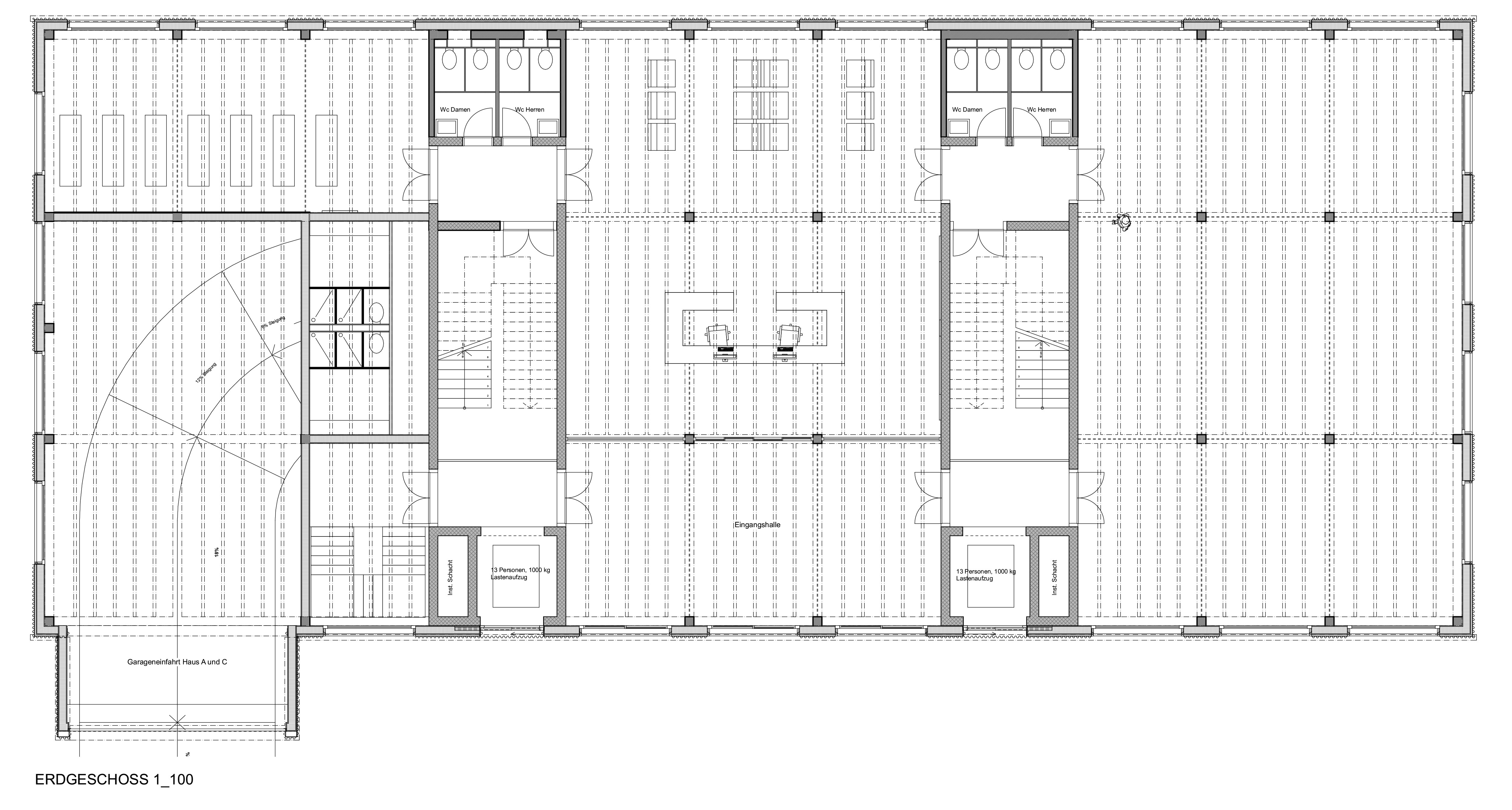
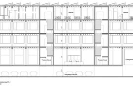
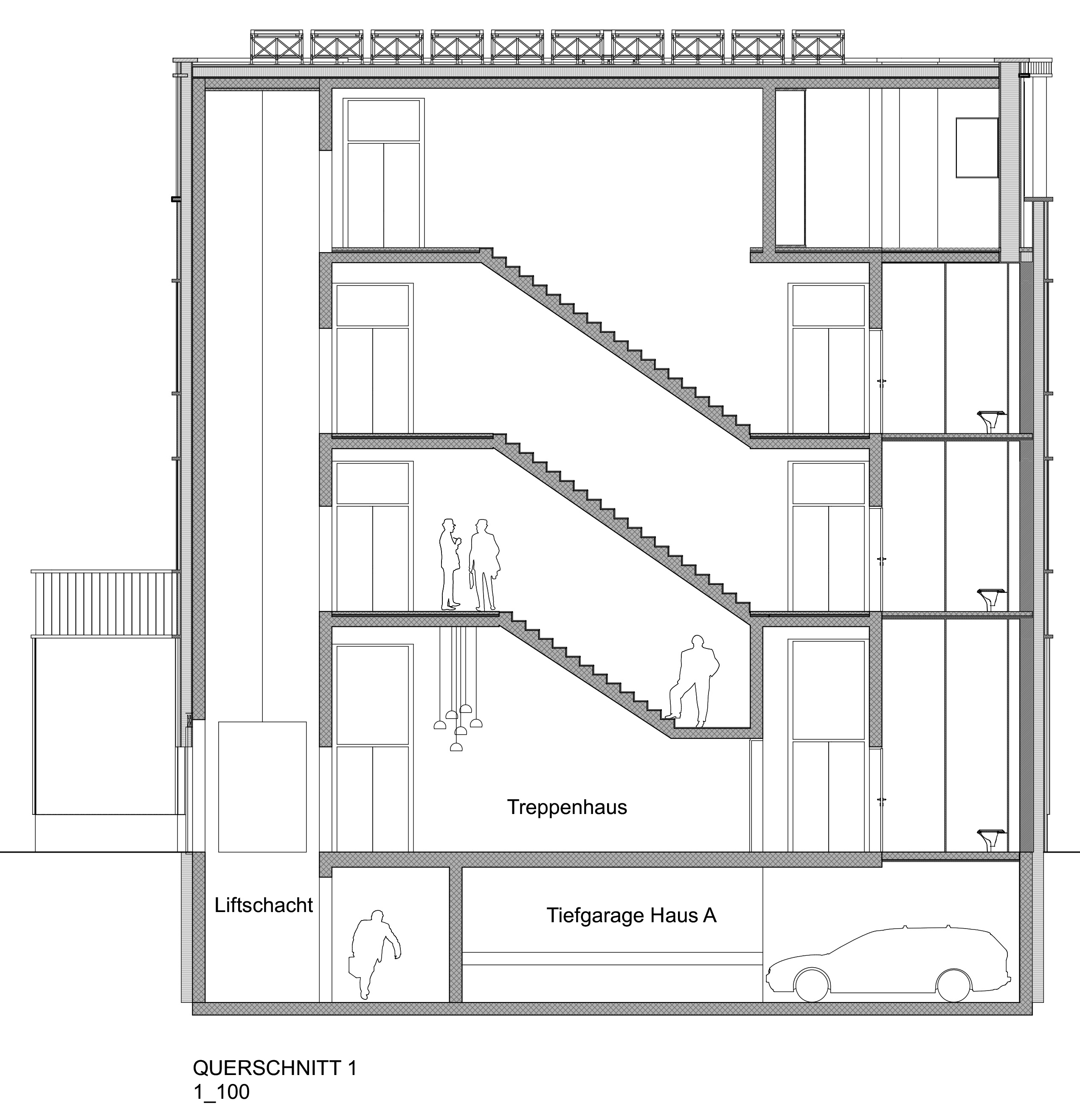
Die geplanten Gewerbebauten bestehen aus insgesamt drei klar ablesbaren Neubauvolumen, welche sich städtebaulich entlang der Hauptstrasse orientieren und so eine prägnante Präsenz im Strassenraum ausbilden. Die eigentliche Erschliessung und Adressierung der Gebäude erfolgt bewusst von der rückwärtig gelegenen Quartierstrasse her. Dadurch wird der Verkehr von der Hauptstrasse entlastet und eine ruhige, gut zugängliche Eingangssituation geschaffen.
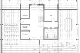
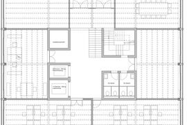
Grosszügig dimensionierte Vorplätze vor den jeweiligen Gebäudeeingängen übernehmen die Funktion der Adressbildung und dienen gleichzeitig als Begegnungs- und Aufenthaltszonen. Diese Vorbereiche stärken die Lesbarkeit der einzelnen Gebäudekomplexe und ermöglichen eine klare Orientierung für Nutzerinnen und Nutzer sowie Besucherinnen und Besucher.
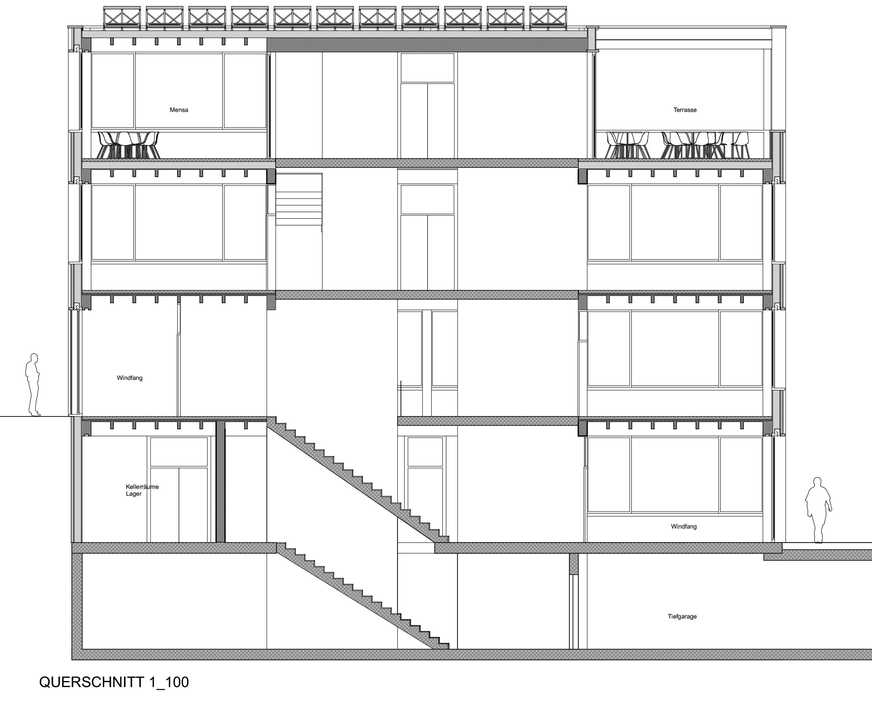
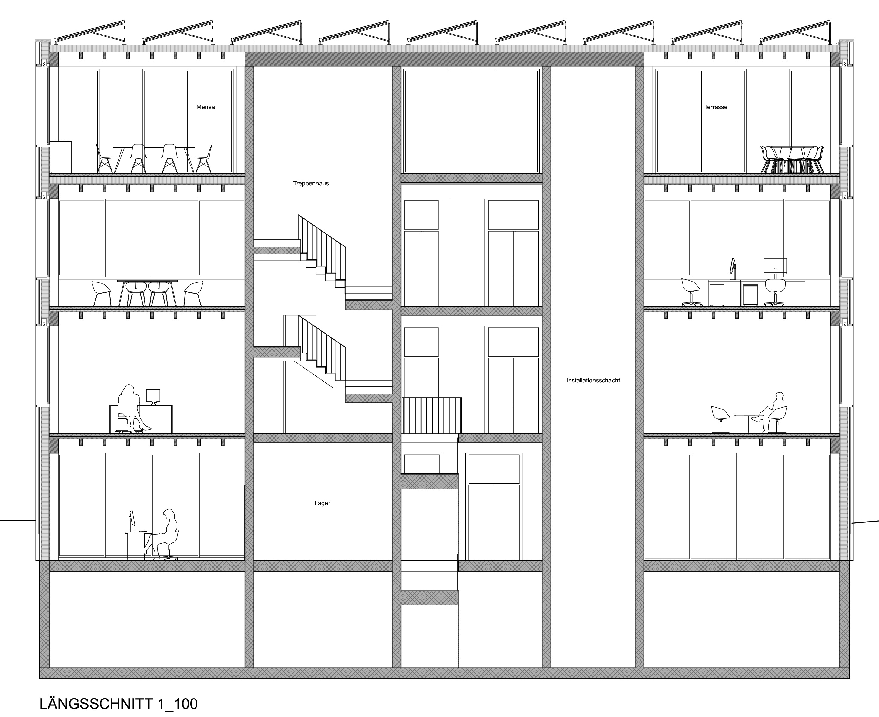
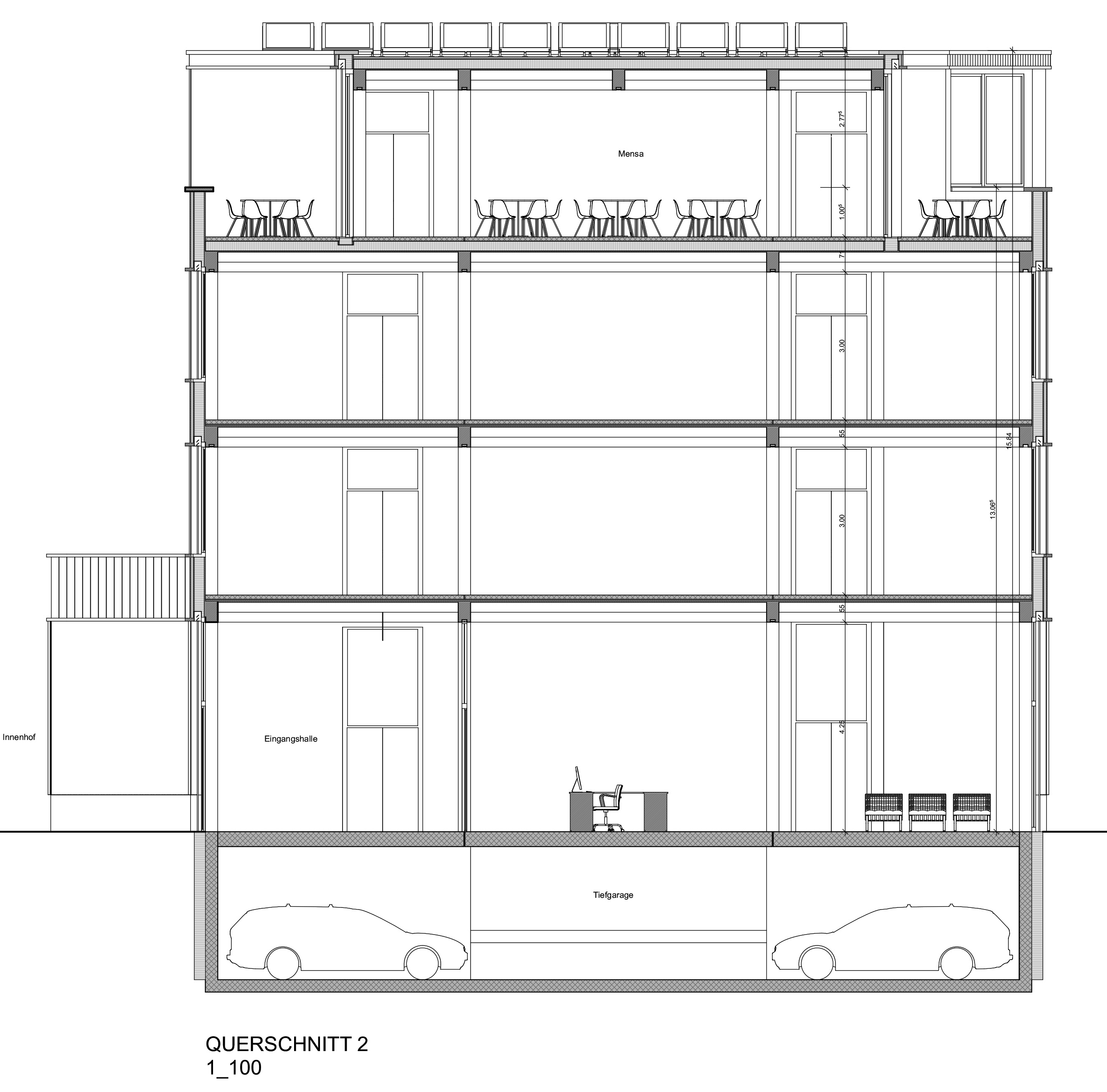
Konstruktiv sind die Gebäude als hybride Bauweise konzipiert. Die vertikalen Erschliessungskerne, welche Treppenhäuser und Liftanlagen aufnehmen, werden in Ortbeton ausgeführt. Diese Bauweise gewährleistet einerseits die erforderliche statische Stabilität der Gesamtstruktur und stellt andererseits die notwendigen Anforderungen an den Brandschutz sowie die sichere Ausführung der Fluchtwege sicher. Zwischen den massiven Erschliessungskernen spannt sich eine hybride Holzkonstruktion, welche eine nachhaltige Bauweise mit hoher Flexibilität verbindet.
Ein zentrales Anliegen der Bauherrschaft war die Möglichkeit einer vielseitigen und langfristig anpassbaren Nutzung. Entsprechend wurde grosser Wert auf eine flexible Grundrissgestaltung gelegt. Die Gewerbeflächen lassen sich je nach Bedarf in unterschiedliche Einheiten unterteilen und ermöglichen sowohl Kleinnutzerflächen ab ca. 90 m² als auch Grossnutzerflächen bis zu 546 m² pro Geschoss. Diese Variabilität erlaubt eine breite Nutzungsdurchmischung und eine Anpassung an sich verändernde Marktbedürfnisse über den gesamten Lebenszyklus der Gebäude.
Alle drei Gebäude verfügen über jeweils vier Vollgeschosse. Die lichten Raumhöhen variieren je nach Nutzung und Geschoss zwischen ca. 4.25 m in den unteren Ebenen und ca. 3.00 m in den oberen Geschossen, wodurch sowohl gewerbliche als auch produktionsnahe Nutzungen möglich sind.
Die Fassaden werden mit einer hinterlüfteten Metallverkleidung ausgeführt. Diese robuste und langlebige Materialisierung trägt wesentlich zur Reduktion des Unterhaltsaufwandes bei und verleiht den Gebäuden zugleich einen zeitgemässen, industriell geprägten Ausdruck, der dem Charakter der gewerblichen Nutzung entspricht.
| Leistungen | Architektur, Planung, Bauleitung |
| Realisierung | |
| Bauherr | Privat |
| Auftraggeber | Privat |
- Gewerbe
- Hybridbau
- Produktionsfläche
- Showroom
Oesch Architektur GmbH
Alte Badenerstrasse 8
8173 Neerach
Tel. 043 411 10 00
So erreichen Sie uns
Montag bis Freitag:
07.30 Uhr – 11.45 Uhr, 13.15 Uhr – 17.00 Uhr
Folgen Sie uns auf Instagram
Oesch Architektur GmbH aus Neerach im Zürcher Unterland ist Ihr zuverlässiges Architekturbüro für Ihr Bauprojekt. In mehr als 34 Jahren haben wir uns einen Namen geschaffen für Neubauten, Umbauten und Renovationen in einwandfreier Qualität.
Unser Versprechen: Oesch Architektur GmbH hält mit qualifizierter Architektur die Kosten und Termine ein.
© 2026 Oesch Architektur Datenschutz | Impressum